0
Votre panier 0,00 €
Boutique B2B : créez votre compte pro et bénéficiez de 25% de remise immédiate sur tous les produits de notre boutique réservée aux professionnels.
Découvrez WIBAT® applique, la motorisation des volets battants cintrés ou arrondis. Très simple à installer, en neuf ou en rénovation, WIBAT® applique s’adapte à tous types de volets battants et vous permet de conserver vos volets existants. Vous préservez ainsi le charme et le cachet de votre habitat, tout en modernisant vos ouvertures. WIBAT® applique est disponible à commande filaire avec interrupteur ou à commande radio avec télécommande.
Fabriqué en France et garanti 5 ans.

Référence : W0001050
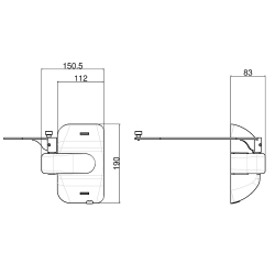
Motorisation en applique
Pour volet battant 1 vantail (gauche vu de l'extérieur)
Carter et bras blancs RAL 9010
Commande filaire (interrupteur)
Surface max du vantail : 1,6 m²
Poids max du vantail : 50 kg
Garantie : 5 ans
Livraison sous 3 à 5 jours
Description
Kit de motorisation filaire WIBAT® applique gauche pour volet battant 1 vantail, comprenant :
1 bloc moteur
1 bras + glissières blancs RAL 9010
1 interrupteur filaire (2 boutons poussoirs)
1 gabarit de pose
1 lot de visserie
1 notice de pose
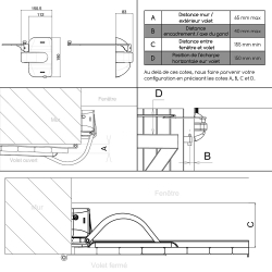
Spécifications techniques à respecter :
Largeur du vantail : 40 cm min / 80 cm max
Surface max du vantail : 1,6 m²
Poids max du vantail : 50 kg
Largeur tableau : 15 cm
Distance max axe du gond / bord du volet : 40 mm
Attention : volet non compris dans le kit.
Pour plus de détails, consultez la notice de pose.
FICHE TECHNIQUE
| Utilisation / Application | Volet battant |
|---|---|
| Temps de fermeture | 16 s |
| Couleur | Blanc |
| Type de commande | Filaire |
| Nombre de vantail (vu de l'extérieur) | 1 gauche |
| Type de fin de course | Dynamique (arrêt sur obstacle) |
| Epaisseur max. vantail | 40 mm |
| Puissance max | 100 W |
| Surface max du vantail | 1.6 m² |
| Poids max / vantail | 50 kg |
| Largeur max. / vantail | 80 cm |
| Position du moteur | A gauche |
| Couple moteur | 25 Nm |
| Type de moteur | Motoréducteur à courant continu |
| Tension moteur | 24 V DC |
| Nombre de vantaux (vue de l'extérieur) | 1 gauche |
| Nombre de moteurs | 1 |
| Nombre de moteurs / vantail | 1 |
| Temps d'ouverture | 16 s |
| Température d'utilisation | -20°C à +60°C |
| Type de produit | Kit motorisation |
| Indice de protection | IP54 |
| Tension alimentation | 230 V AC |
| Usage | Extérieur |
| Délai d'expédition du produit | 2 |
| Marque | Mantion SMT |
| Origine de fabrication | France |
| Garantie B2B | 5 ans |
Qualité garantie
Mantion SMT garantit toutes ses motorisations de portes et volets pendant 5 ans et ses accessoires pendant 2 ans.
Livraison rapide
La livraison des produits en stock est assurée sous 3 à 5 jours à votre entreprise. L'expédition est effectuée depuis la société située à Genlis (21).
Paiement sécurisé
Le paiement en ligne de vos commandes est entièrement sécurisé par carte bancaire, Paypal ou virement bancaire.
14 PIÈCES DÉTACHÉES ET ACCESSOIRES
avis de clients